AccueilVente BureauxBureaux le kremlin bicetre
< Retour
Vente - Bureaux
le kremlin bicetre
59 RUE DU GENERAL LECLERC 94270 le kremlin bicetre
Prix : 1 075 000€
le kremlin bicetre
59 RUE DU GENERAL LECLERC 94270 le kremlin bicetre
Réf. 834879
Vente - Bureaux
le kremlin bicetre
59 RUE DU GENERAL LECLERC 94270 le kremlin bicetre
433m²
Prix : 1 075 000€
Réf. 834879




Description
Localisation & transport
Consommation énergétique
À VENDRE - Bureaux flexibles de 433m² avec accès direct sur rue calme et parkings inclus.
Emplacement stratégique (5 minutes en voiture des autoroutes A6a / A6b et du périphérique parisien) - Accessibilité optimale
À proximité immédiate de Paris, au coeur du Kremlin-Bicêtre, découvrez ces bureaux fonctionnels et modulables situés dans un immeuble mixte bien entretenu.
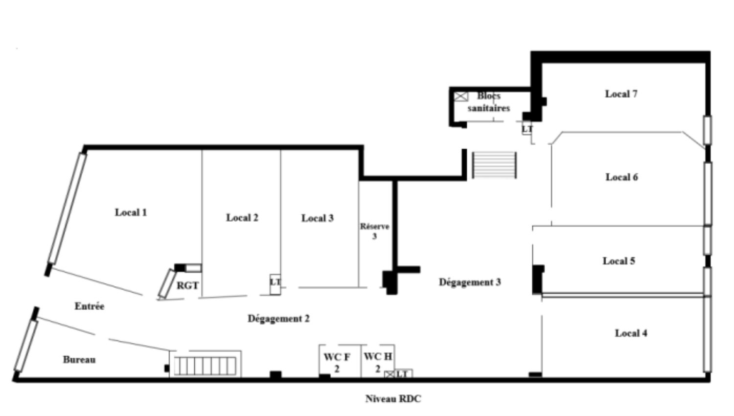
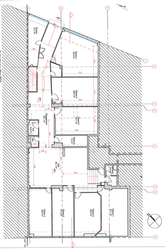
Au RDC sur rue de 300,94 m² :
Un espace d'accueil
7 bureaux cloisonnés (possibilité de tout décloisonner)
Très peu de contraintes porteuses
Un bloc sanitaires + un sanitaire
Au sous-sol de 132 m² : 3 espaces cloisonnés
un local technique
un espace de réserve
un bloc sanitaires.
Possibilité de monte charges (trémie existante)
Parking intérieur - 4 emplacements
3 Boxes en sous-sol
Espace de réserve
Sanitaires
Local technique
Observations: 4 places de parking et 3 boxes fermés en sous-sol inclus dans le prix de vente.
Emplacement stratégique (5 minutes en voiture des autoroutes A6a / A6b et du périphérique parisien) - Accessibilité optimale
À proximité immédiate de Paris, au coeur du Kremlin-Bicêtre, découvrez ces bureaux fonctionnels et modulables situés dans un immeuble mixte bien entretenu.
Prestations
Au RDC sur rue de 300,94 m² :
Un espace d'accueil
7 bureaux cloisonnés (possibilité de tout décloisonner)
Très peu de contraintes porteuses
Un bloc sanitaires + un sanitaire
Au sous-sol de 132 m² : 3 espaces cloisonnés
un local technique
un espace de réserve
un bloc sanitaires.
Possibilité de monte charges (trémie existante)
Parking intérieur - 4 emplacements
3 Boxes en sous-sol
Espace de réserve
Sanitaires
Local technique
Observations: 4 places de parking et 3 boxes fermés en sous-sol inclus dans le prix de vente.
Adresse
59 RUE DU GENERAL LECLERC 94270 le kremlin bicetre
Transports
À seulement 5 minutes en voiture des autoroutes A6a / A6b et du périphérique parisien
Excellente desserte en transports en commun :
Métro ligne 7 - station Le Kremlin-Bicêtre
Métro ligne 14 - station hôpital Bicêtre
Nombreuses lignes de bus à proximité
En cours de détermination
En cours de détermination
























