AccueilVente BureauxBureaux le kremlin bicetre
< Retour
Vente - Bureaux
le kremlin bicetre
59 RUE DU GENERAL LECLERC 94270 le kremlin bicetre
Prix : 990 000€
le kremlin bicetre
59 RUE DU GENERAL LECLERC 94270 le kremlin bicetre
Réf. 696453
Vente - Bureaux
le kremlin bicetre
59 RUE DU GENERAL LECLERC 94270 le kremlin bicetre
433m²
Prix : 990 000€
Réf. 696453




Description
Localisation & transport
Consommation énergétique
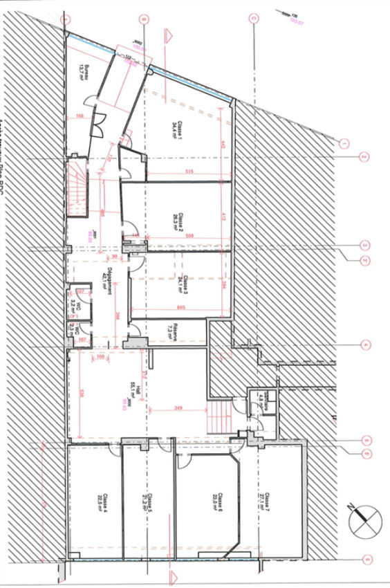
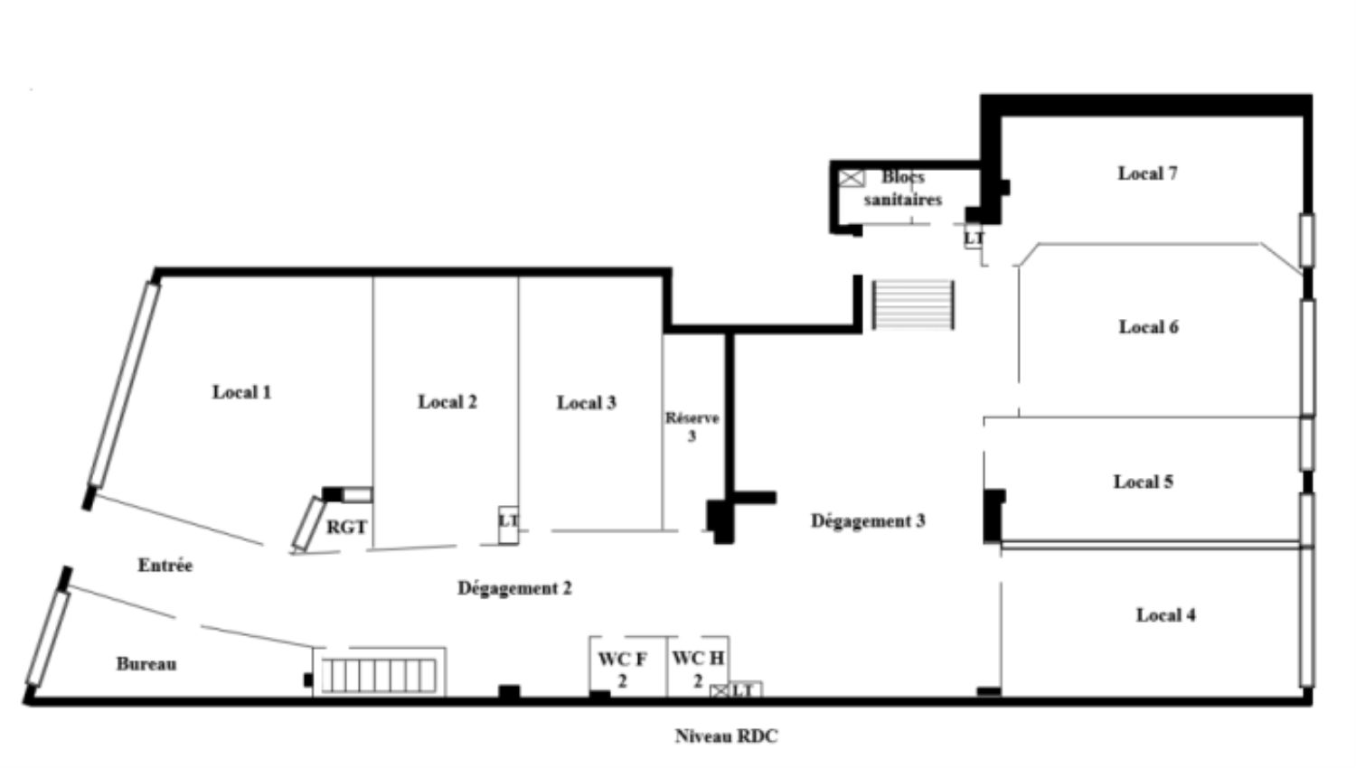
Niveau RDC : Un espace d'accueil, 7 bureaux cloisonnés, un open space de 55 m², 3 sanitaires, Un espace de stockage
Très peu de contraintes porteuses
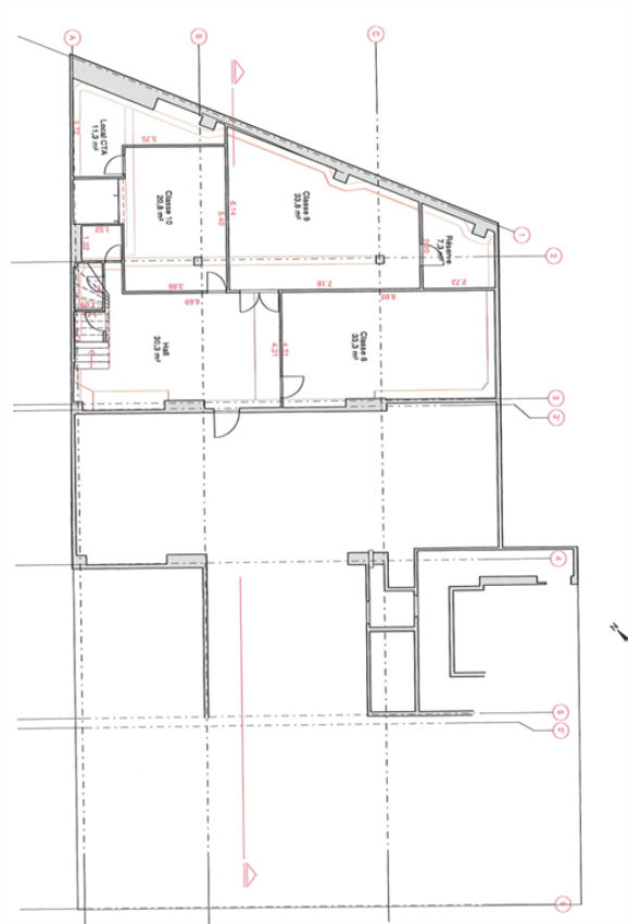
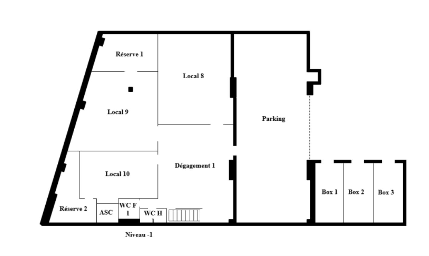
Niveau -1 : 3 bureaux, Un local technique, Espace de réserve, sanitaire (accès parking)
Niveau -1 : Sous-sol : 4 places de parking et 3 boxes)
Possibilité de monte charges (trémie existante)
Parking intérieur - 4 emplacements
3 Boxes en sous-sol
Espace de réserve
Sanitaires
Local technique
Très peu de contraintes porteuses
Niveau -1 : 3 bureaux, Un local technique, Espace de réserve, sanitaire (accès parking)
Niveau -1 : Sous-sol : 4 places de parking et 3 boxes)
Prestations
Possibilité de monte charges (trémie existante)
Parking intérieur - 4 emplacements
3 Boxes en sous-sol
Espace de réserve
Sanitaires
Local technique
Adresse
59 RUE DU GENERAL LECLERC 94270 le kremlin bicetre
Transports
Métro : Le Kremlin-Bicêtre (7)
En cours de détermination
En cours de détermination























