AccueilLocation BureauxBureaux paris
Location - Bureaux
paris
42 RUE ETIENNE MARCEL 75002 paris
108m²
Loyer : 580€/m²/an
Réf. 870231




Description
Localisation & transport
Consommation énergétique
Situés entre le forum des Halles et la Place des Victoires, des bureaux en très bon état et très fonctionnels.
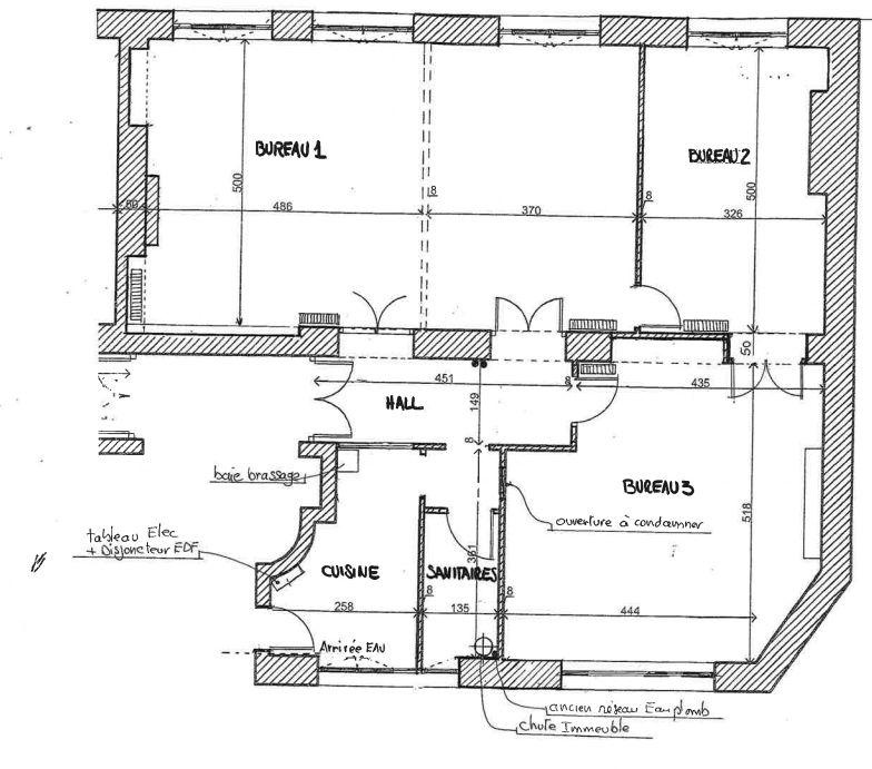
La surface est composée d'un grand open-space pouvant accueillir une dizaine de collaborateurs, une grande salle de réunion, 2 petites salles de réunion et une cuisine.
Possibilité de louer la surface plug&play avec le mobilier (7 500EUR/mois CC)
Bail 3/6/9 ou sous-location totale de 24 mois
Immeuble haussmannien
Contrôle d'accès
Gardienne
Chauffage collectif
Fibre optique
État des locaux : Excellent état
Surface fonctionnelle
Câblage informatique
La surface est composée d'un grand open-space pouvant accueillir une dizaine de collaborateurs, une grande salle de réunion, 2 petites salles de réunion et une cuisine.
Possibilité de louer la surface plug&play avec le mobilier (7 500EUR/mois CC)
Bail 3/6/9 ou sous-location totale de 24 mois
Prestations
Immeuble haussmannien
Contrôle d'accès
Gardienne
Chauffage collectif
Fibre optique
État des locaux : Excellent état
Surface fonctionnelle
Câblage informatique
Adresse
42 RUE ETIENNE MARCEL 75002 paris
Transports
Métro : Etienne Marcel (4), Sentier (3)
En cours de détermination
En cours de détermination



















