AccueilLocation BureauxBureaux paris
Location - Bureaux
paris
38 RUE BRUNEL 75017 paris
391m²
Loyer : 650€/m²/an
Réf. 866573




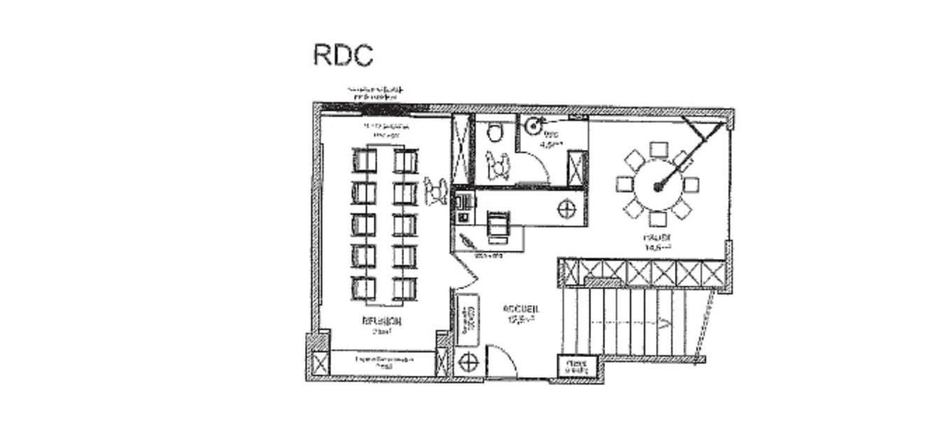
Description
Localisation & transport
Consommation énergétique
Situé à quelques pas de la place Saint-Ferdinand, dans un secteur vivant et bien desservi en transport en commun, à louer des bureaux
Immeuble mixte
Accès indépendant
Gardien
Contrôle d'accès extérieur
Escalier intérieur
État des locaux : Très bon état
Vue dégagée côté rue et cour
Peu de murs porteurs
Cuisine
Climatisation
Câblage informatique
Prestations
Immeuble mixte
Accès indépendant
Gardien
Contrôle d'accès extérieur
Escalier intérieur
État des locaux : Très bon état
Vue dégagée côté rue et cour
Peu de murs porteurs
Cuisine
Climatisation
Câblage informatique
Adresse
38 RUE BRUNEL 75017 paris
Transports
Métro : Argentine (1) à 4 min, Porte Maillot (1) à 6 min
RER : Neuilly - Porte Maillot (C)
Bus : 73, 43, 82, PC1, PC3
Navettes permettant de relier l'Aéroport de Roissy-Charles De Gaulle
Accès routiers : BP Porte Maillot et Parking de proximité ' Etoile-Pereire ' à 1mn
Vélib : station '26 rue Ferdinand' à 1 min
En cours de détermination
En cours de détermination



























