AccueilLocation BureauxBureaux paris
< Retour
Location - Bureaux
paris
29 BOULEVARD DE COURCELLES 75008 paris
Loyer : 850€/m²/an
paris
29 BOULEVARD DE COURCELLES 75008 paris
Réf. 688544
Location - Bureaux
paris
29 BOULEVARD DE COURCELLES 75008 paris
336m²
Loyer : 850€/m²/an
Réf. 688544




Description
Localisation & transport
Consommation énergétique
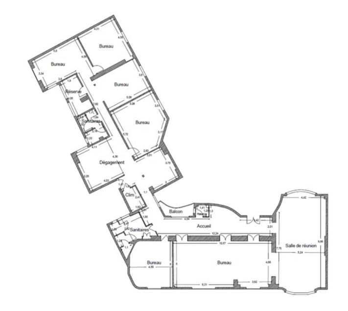
Surface de bureaux à louer, idéalement située à proximité du Parc Monceau.
Bel immeuble haussmannien
Accès sécurisé
Gardien
Ascenseur
Très belles parties communes
Fibre optique
État des locaux : Rénové
Locaux traversants et fonctionnels
Galerie d'entrée
12 bureaux de 15 à 22 m²
Local technique avec baie de brassage
Espace reprographie
3 sanitaires,
5 débarras au RDC et cave
Flexibilité d'aménagement - possibilité de décloisonner
Grande hauteur sous plafond
Balcon sur rue
Parquet & Moulures
Moquette
Climatisation
Câblage informatique
Fibre optique
Prestations
Bel immeuble haussmannien
Accès sécurisé
Gardien
Ascenseur
Très belles parties communes
Fibre optique
État des locaux : Rénové
Locaux traversants et fonctionnels
Galerie d'entrée
12 bureaux de 15 à 22 m²
Local technique avec baie de brassage
Espace reprographie
3 sanitaires,
5 débarras au RDC et cave
Flexibilité d'aménagement - possibilité de décloisonner
Grande hauteur sous plafond
Balcon sur rue
Parquet & Moulures
Moquette
Climatisation
Câblage informatique
Fibre optique
Adresse
29 BOULEVARD DE COURCELLES 75008 paris
Transports
Métro : Villiers (2, 3)
En cours de détermination
En cours de détermination































